‹ Back to Developments: Blackberry Close, Great Barford
Roxton Road , Great Barford
Overview
- SOUGHT-AFTER VILLAGE LOCATION
- 10 YEAR ICW WARRANTY
- COUNTRYSIDE SURROUNDINGS
- HIGHLY SPECIFIED KITCHEN WITH INTEGRATED APPLIANCES
- ENERGY EFFICIENT DESIGN
- EXCELLENT LOCAL AMENITIES & TRANSPORT LINKS
- EXCLUSIVE DEVELOPMENT OF JUST 7 HOMES
- 23FT DEEP GARAGE & DRIVEWAY
- LARGE 3 BEDROOM DETACHED FAMILY HOME
Find out your home's value
For an up-to-date market appraisal of your property, request a valuation now.
Description
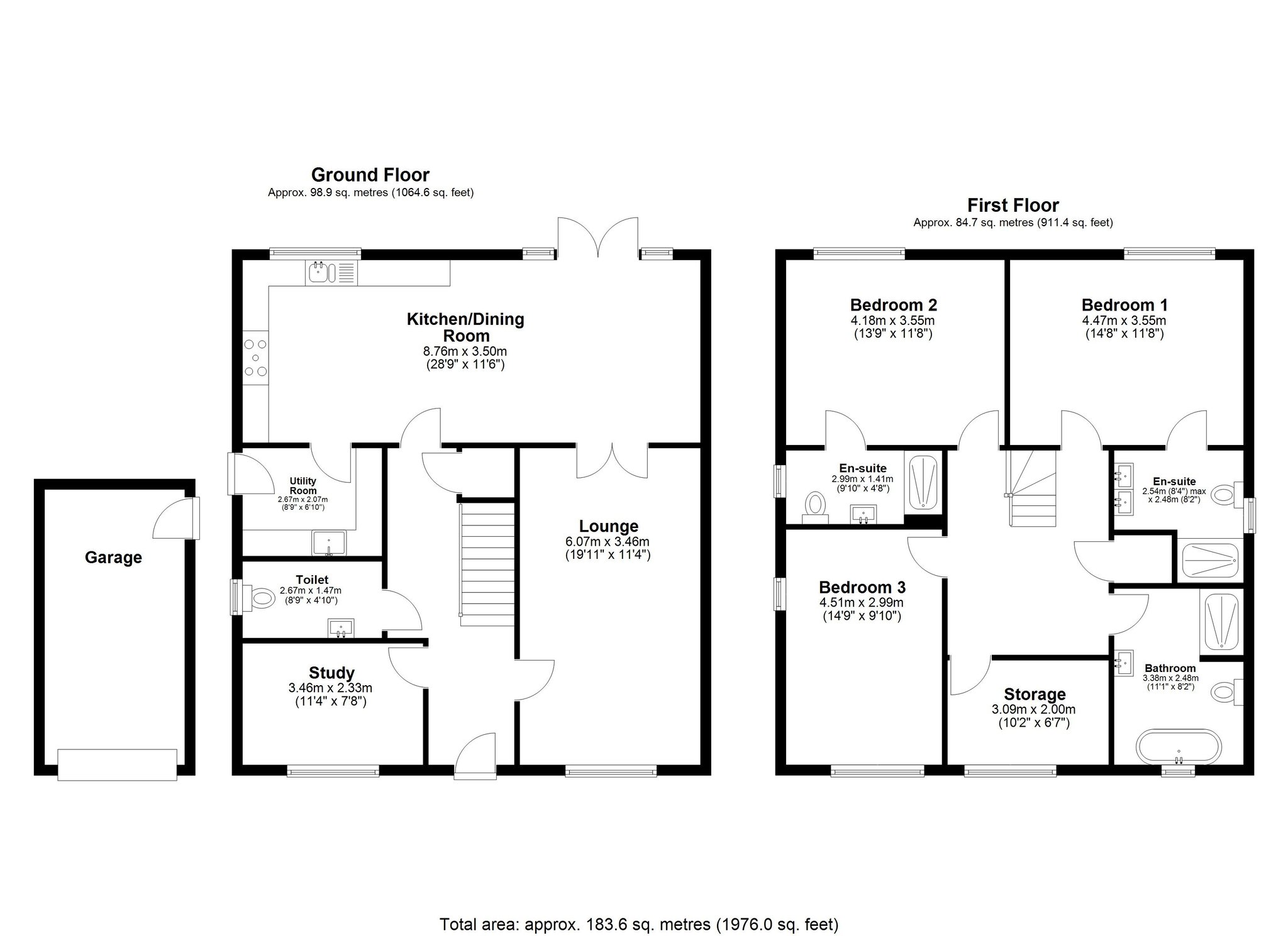
**PLOT 7 BLACKBERRY CLOSE** **A DOUBLE FRONTED EXECUTIVE 3 BEDROOM DETACHED HOME WITH 23FT GARAGE LOCATED IN THE HEART OF GREAT BARFORD**
A larger than average and thoughtfully arranged 3 bedroom family home with versatile living, single garage, and generous rear garden, ideally located in a private cul-de-sac of 7 homes in the sought-after village of Great Barford
Estate Agents Great BarfordVirtual Tour
Similar Properties
Maulden Meadows, Clophill Road, Bedford
£695,000Bedford, MK45 2AEA modern, versatile, and well-appointed throughout three double bedroom detached home offers a superb layout tailored to modern family living, with thoughtfully zoned spaces across both floors.3 Bedrooms3 Bathrooms2 Receptions




























